Sam Conrad
Projects
About
Contact
Back
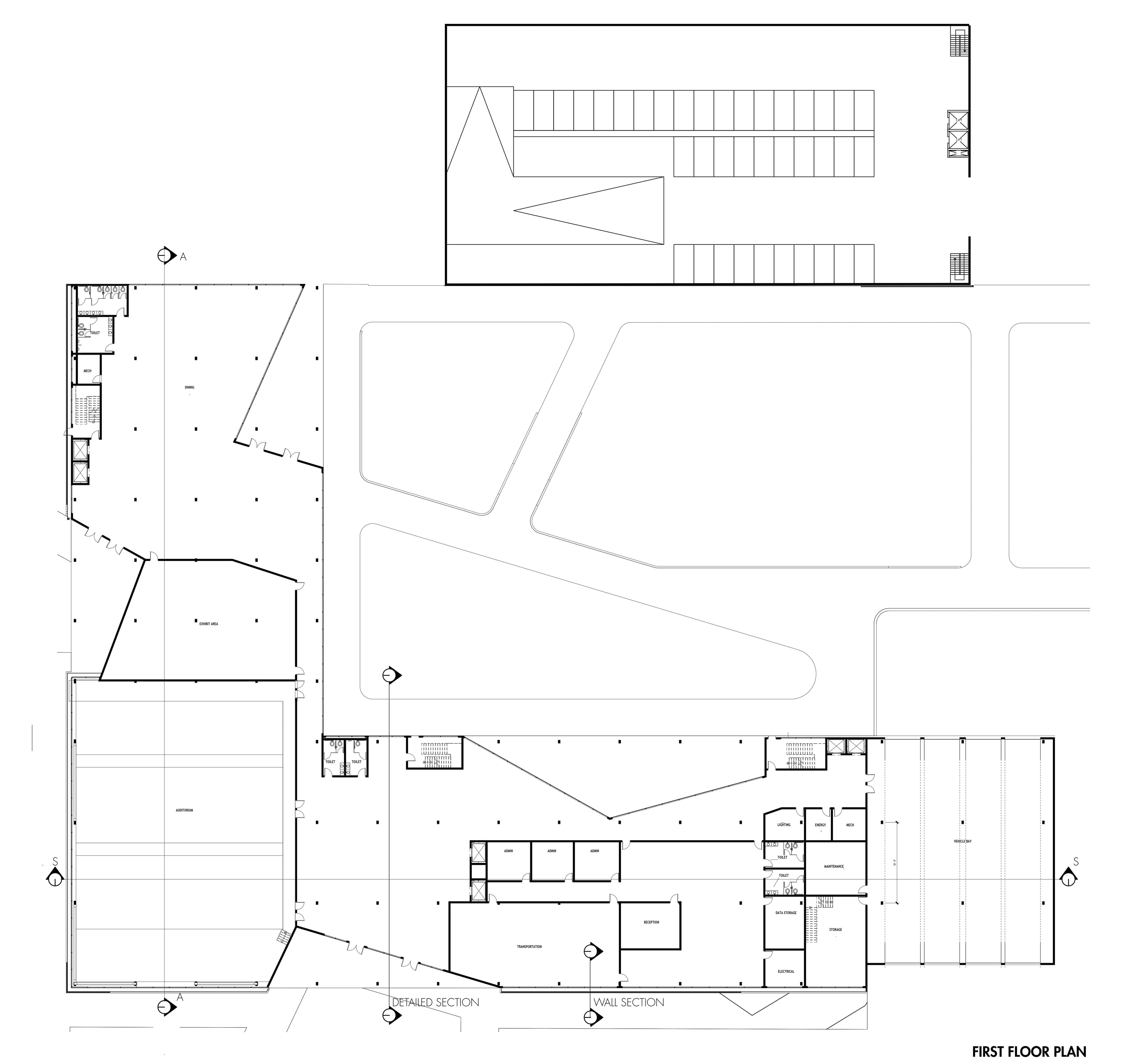
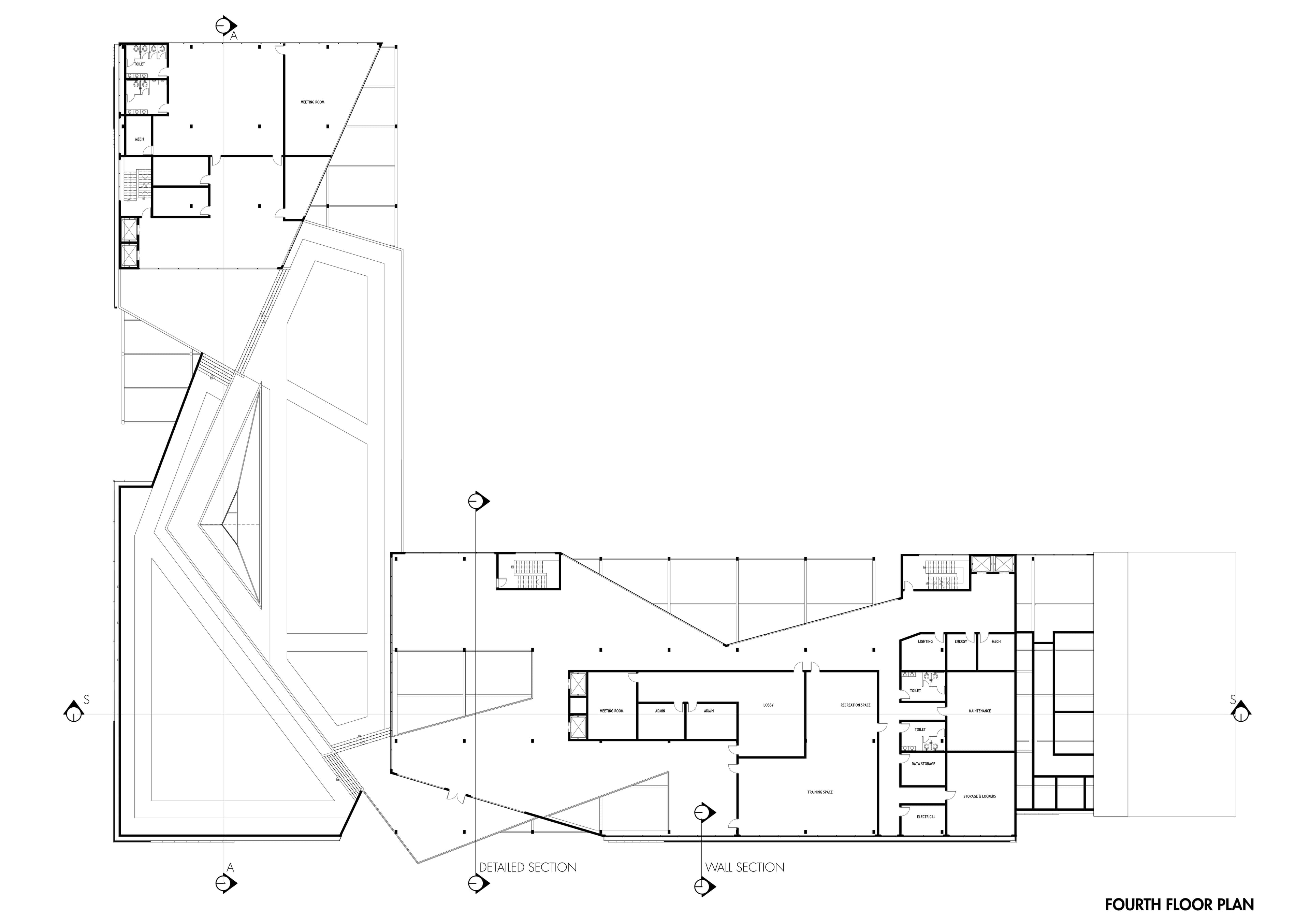
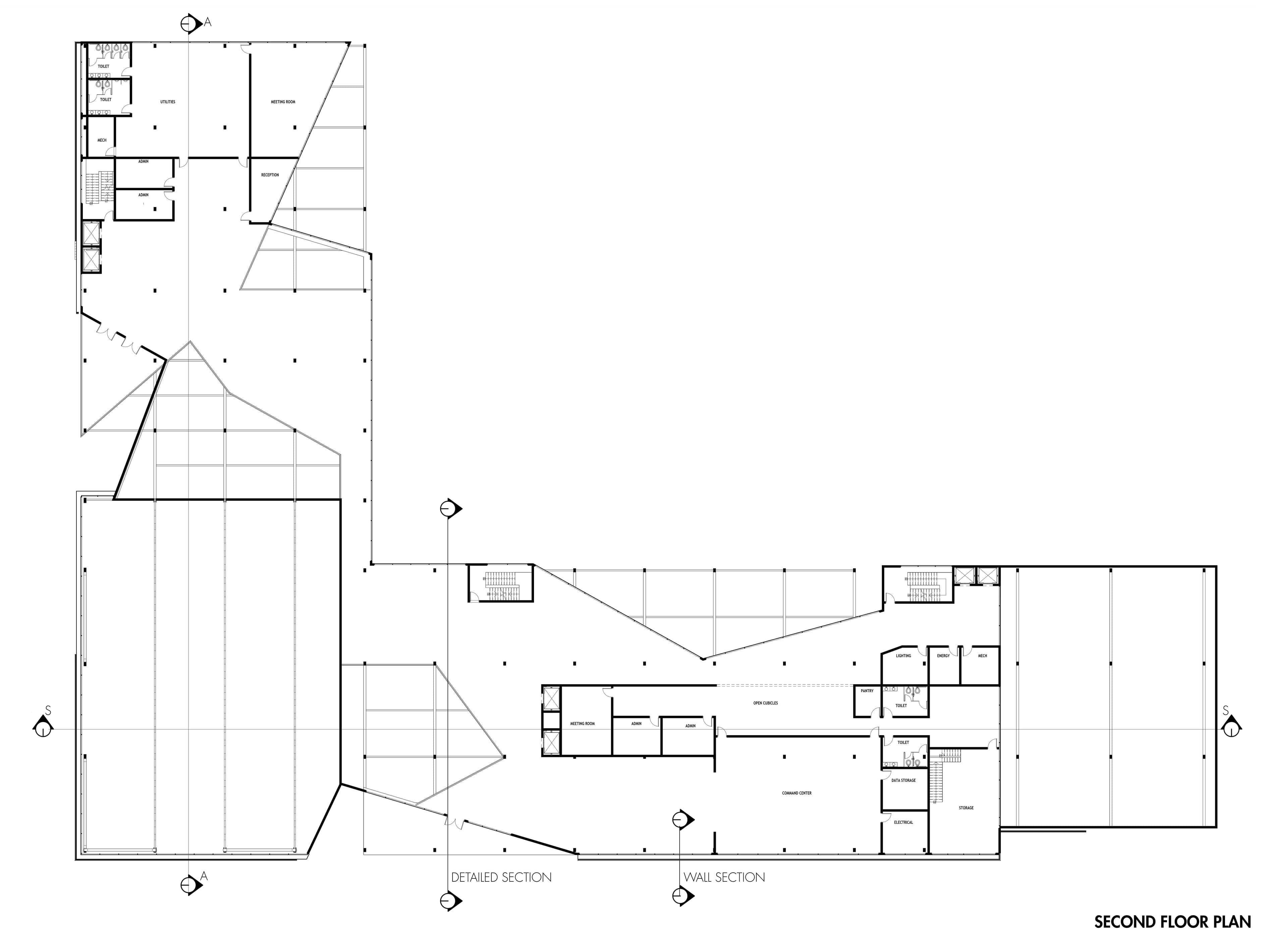
Slice
Location
Charlotte, NC
Year
2025
Type
Emergency Response Center (Academic)
Role
Designer
Contributors
Akhil Taninki
Gallery
Slice | Architecture Portfolio